Der neue Elli Markt ist genehmig! Dazu erschien ein Artikel in der NW am 25.02.2026 den Herr Matthias Gans verfasst hat. Wir stellen Ihnen den mit freundlicher Genehmigung der NW Chefredaktion in Zweitverwertung hiermit zur Verfügung. Quellhinweis: Der Text ist...
Baubeginn am neuen Elli Markt
Der neue Elli Markt ist genehmig!
Dazu erschien ein Artikel in der NW am 25.02.2026 den Herr Matthias Gans verfasst hat. Wir stellen Ihnen den mit freundlicher Genehmigung der NW Chefredaktion in Zweitverwertung hiermit zur Verfügung.
Quellhinweis: Der Text ist urheberrechtlich geschützt. Weiterverwendung nur mit schriftlicher Genehmigung der NW Redaktion.
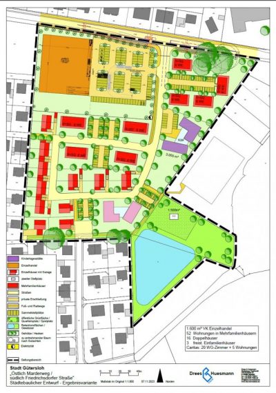
Herr Rieländer, Geschäftsführer der Lüning Gruppe, war so freundlich uns auch die Veröffentlichung der Visualisierung des neuen Marktes zu genehmigen. Er weist besonders darauf hin, dass es sich um keine realistische Bilddarstellung handelt. Im Vordergrund wäre ein Fußgängerweg zu sehen der in Wirklichkeit an der Friedrichsdorfer Straße nicht machbar und geplant ist. Er hat sich auch zur Fertigstellung des Marktes geäußert.
Der ist im November geplant.
Die folgenden Bilder stammen aus eigener Quelle und zeigen den Baufortschritt.

Seit dem 4. Mai 2026 bis zum 7. August 2026 ist die Friedrichsdorfer Straße rund um das Elli Areal gesperrt.
Es wird eine zusätzliche Abbiegespur zur Erschließung der Elli Areals gebaut.
Wie so oft wurden die Bürger über die Maßnahme sehr spät informiert.
Ein längerer Artikel erschien dazu am 5. Mai in der NW Zeitung.

Baufortschritt KW 19

Baufortschritt KW 17

Baufortschritt KW 13
Die ersten tragenden Säulen sind erstellt.

Baufortschritt KW 12
Das Streifenfundament ist gelegt.

Baufortschritt KW 9
Erdarbeiten.





